Prekių kategorijos
-
Buitinė technika
- Įmontuojamos orkaitės
- Įmontuojamos kaitlentės
- Įmontuojamos kaitlentės su integruotu gartraukiu
- Gartraukiai
- Įmontuojamos indaplovės
- Įmontuojamos mikrobangų krosnelės
- Įmontuojami šaldytuvai
- Įmontuojami šaldikliai
- Įmontuojamos skalbyklės
- Įmontuojami kavos aparatai
- Įmontuojami pašildymo stalčiai
- Maisto atliekų smulkintuvai
- Įmontuojamos džiovyklės
- Virduliai
- Mėsmalės
- Elektriniai griliai
- Pjaustyklės
- Skrudintuvai
- Virtuviniai kombainai
- Kita
- Trintuvai
- Vakuumatoriai
- Sulčiaspaudės
- Svarstyklės
- Kokteilinės
- Plaktuvai
- Duonkepės
- Gruzdintuvės
- Sumuštinių keptuvės
- Ledų gaminimo aparatai
- Vaflinės
- Dešrainių gaminimo aparatai
- Spragėsių gaminimo aparatai
- Ledukų gaminimo aparatai
- Jogurto gaminimo aparatai
- Elektrinės keptuvės
- Vaisių, uogų, grybų džiovykės
- Pieno plakikliai
- Multifunkciniai puodai
- Kiaušinių virimo aparatai
- Cirkuliatoriai
- Vandens dispenseriai
- Gazuoto vandens aparatai
- Prieskonių malūnėliai
- Konvekcinės krosnelės
- Namų apyvokos prekės
-
Grožis ir sveikata
- Išmanieji laikrodžiai
- Televizoriai ir garso technika
-
Sodo prekės ir įrankiai
- Laisvalaiko prekės
-
Santechnika ir šildymas
- Priedai technikai
Ieškoti čia..
Indukcinė kaitlentė su integruota ventiliacijos sistema Neff T58PL6EX2
2 517,53 €
Su PVM
Atsiimkite parduotuvėje Vilniuje, J.Kubiliaus g.1
Radote pigiau? Parašykite mums!
Savybės:
- TwistPadFire® – mūsų sukurtas nuimamas magnetinis ratukinis valdiklis su apšvietimu, kuris leidžia tiksliai valdyti visas gaminimo zonas.
- Power Boost – optimizuotas galios reguliavimas, užtikrinantis lankstesnį ir greitesnį kaitinimą.
- Indukcija: karštis generuojamas tiesiai gaminimo inde, kad maistas būtų paruoštas tiksliai taip, kaip reikia, o gaminimo procesas sustotų išjungus kaitlentę.
Techniniai duomenys:
Valdymas:
- TwistPad® Fire
Lankstumas:
- 2 lanksčios zonos.
- 3 pakopų
- 4 indukcinės kaitvietės su puodo atpažinimu
- Gaminimo zonos automatiškai sujugiamos arba atskiriamos priklausomai nuo padėto gaminimo indo formos ir dydžio.
Komfortas:
- Visų kaitviečių PowerBoost funkcija
- PanBoost funkcija
- 17 kontrolės pakopų
- Simbolis
- Skaitmeninis, 2-jų pakopų šilumos indikatorius
- Timer with switch-off function Laikmatis kiekvienai kaitvietei. Laikmatis
- Automatinė puodų atpažinimo funkcija
- ReStart funkcija
- QuickStart funkcija
- nuotolinis stebėjimas ir valdymas
- Energijos sunaudojimo indikacija
Dizainas:
- planoDesign
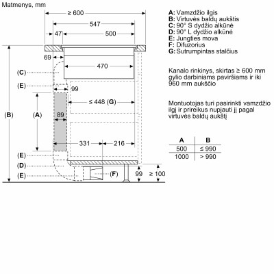
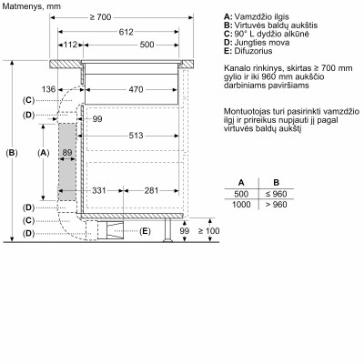
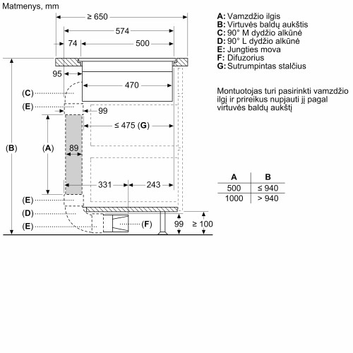
Techninė informacija:
- Laido ilgis: 110
- Gaminimo zonos: 1 indukcinė 400x240 skersmens, 3.3 (max. galia 3.7) arba 2 indukcinės 190 mm skersmens, 2.2 (max. galia 3.7), 1 indukcinė 400x240 skersmens, 3.3 (max. galia 3.7) ar 2 indukcinės 190 mm skersmens, 2.2 (max. galia 3.7)
Dydis ir svoris:
- Gaminio išmatavimai (mm) 227 x 792 x 512 mm
- Svoris neto (kg) 27,205 kg
Daugiau informacijos gamintojo puslapyje
Apie gamintoją:
”Maisto gaminimas įkvepia žmones, o žmonės – mus“ – toks yra pagrindinis kompanijos NEFF principas. Neff užsiima stambios ir smulkios virtuvinės buitinės technikos gamyba: orkaitės, kaitlentės, mikrobangų krosnelės, kavos aparatai, garintuvai, šaldytuvai, šaldikliai. NEFF gali didžiuotis naujoviškais gaminiais, kurie padeda paruošti itin gardų maistą – ar tai būtų vakarienė, ar desertas. NEFF virtuvė turi viską, ko reikia kiekvienam.
chat
Komentarai (0)
Šiuo metu klientų atsiliepimų nėra.
error Jūsų atsiliepimo įvertinimas negali būti išsiųstas
feedback Pranešti apie komentarą
Ar tikrai norite pranešti šį komentarą?
check_circle Pranešimas apie atsiliepimą išsiųstas
Jūsų pranešimas apie atsiliepimą pateiktas ir bus peržiūrėtas moderatoriaus.
error Jūsų pranešimas apie atsiliepimą neišsiųstas
Parašyti savo atsiliepimą
check_circle Atsiliepimas išsiųstas
Jūsų komentaras buvo pridėtas ir bus matomas tada, kai jį patvirtins moderatorius.