Prekių kategorijos
-
Buitinė technika
- Įmontuojamos orkaitės
- Įmontuojamos kaitlentės
- Įmontuojamos kaitlentės su integruotu gartraukiu
- Gartraukiai
- Įmontuojamos indaplovės
- Įmontuojamos mikrobangų krosnelės
- Įmontuojami šaldytuvai
- Įmontuojami šaldikliai
- Įmontuojamos skalbyklės
- Įmontuojami kavos aparatai
- Įmontuojami pašildymo stalčiai
- Maisto atliekų smulkintuvai
- Įmontuojamos džiovyklės
- Virduliai
- Mėsmalės
- Elektriniai griliai
- Pjaustyklės
- Skrudintuvai
- Virtuviniai kombainai
- Kita
- Trintuvai
- Vakuumatoriai
- Sulčiaspaudės
- Svarstyklės
- Kokteilinės
- Plaktuvai
- Duonkepės
- Gruzdintuvės
- Sumuštinių keptuvės
- Ledų gaminimo aparatai
- Vaflinės
- Dešrainių gaminimo aparatai
- Spragėsių gaminimo aparatai
- Ledukų gaminimo aparatai
- Jogurto gaminimo aparatai
- Elektrinės keptuvės
- Vaisių, uogų, grybų džiovykės
- Pieno plakikliai
- Multifunkciniai puodai
- Kiaušinių virimo aparatai
- Cirkuliatoriai
- Vandens dispenseriai
- Gazuoto vandens aparatai
- Prieskonių malūnėliai
- Konvekcinės krosnelės
- Namų apyvokos prekės
-
Grožis ir sveikata
- Išmanieji laikrodžiai
- Televizoriai ir garso technika
-
Sodo prekės ir įrankiai
- Laisvalaiko prekės
-
Santechnika ir šildymas
- Priedai technikai
Ieškoti čia..
Įmontuojama indukcinė kaitlentė su integruotu gartraukiu Bosch PVS611B16E
Atsiimkite parduotuvėje Vilniuje, J.Kubiliaus g.1
Radote pigiau? Parašykite mums!
Kaitlentė ir gartraukis viename.
Integruotas vėdinimo modulis sujungia geriausias mūsų indukcines kaitlentes ir gartraukius. Kadangi jis yra įmontuotas į kaitlentės paviršių, jis pašalina gaminimo kvapus ir garus ten, kur jie prasideda. Tokiu būdu jums nereikės atskiro gartraukio ir turėsite daugiau vietos spintelėms virš galvos arba galėsite aiškiai matyti savo virtuvę.
Su mūsų valdymo elementais jūs viską kontroliuojate
Su TouchSelect valdikliu galite lengvai reguliuoti norimą kaitvietę. Tiesiog pasirinkite reikiamą galios lygį.
Daugiau laisvės gaminant maistą.
Jei kada nors prireiks daugiau vietos ilgam indui, pavyzdžiui, kepimo indui, galite sujungti dvi atskiras kaitvietes į vieną didelę zoną su kombinuotu šilumos lygiu vienu mygtuko paspaudimu su CombiZone.
Paspartinkite gaminimą.
Kai norite greitai ir lengvai pavalgyti ant stalo dar greičiau, PowerBoost gali padėti. Ši praktiška funkcija suteikia papildomos galios itin greitam šildymui. Naudokite jį ant indukcinės kaitlentės dideliems vandens kiekiams užvirinti – ir įkaitinkite beveik 35 % greičiau, palyginti su didžiausiu galios lygiu.
Maisto gaminimas prasideda daug greičiau.
„QuickStart“ funkcija nustato, kur padėjote puodą, ir automatiškai parodo atitinkamą kaitvietę valdymo sąsajoje. Galite pradėti iš karto ir nedelsdami pasirinkti norimą kepimo lygį savo puodui.
Išsaugo jūsų valdymo nustatymus.
Ar kada nors netyčia išjungėte kaitlentę ir dingo visi nustatymai? Naudodami funkciją Paleisti iš naujo, kaitlentė išsaugo ankstesnius nustatymus ir atkuria juos, jei per keturias sekundes vėl įjungsite kaitlentę.
Savybės:
- Integruotas vėdinimo modulis: ištraukite garus ir gaminimo kvapus šaltinyje.
- TouchSelect: norimos kaitvietės pasirinkimas ir lengvas norimo galios lygio nustatymas.
- CombiZone: daugiau lankstumo sujungiant dvi kaitvietes, skirtas skrudintuvams ir kt.
- PowerBoost: iki 50 % daugiau galios, kad jūsų indukcinė kaitlentė įkaistų greičiau.
- QuickStart: pradėkite iš karto ir pasirinkite norimą gaminimo lygį.
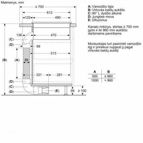
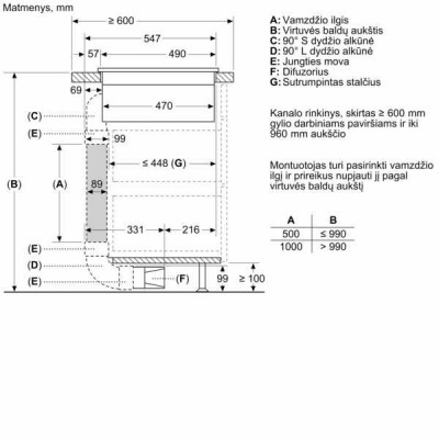
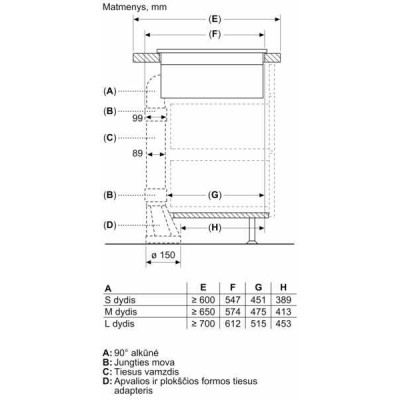
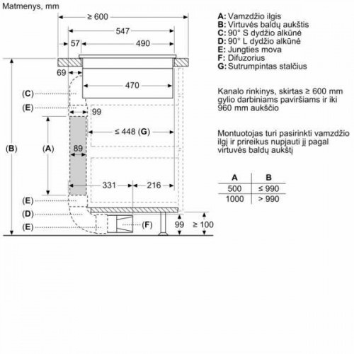
TECHNINIAI DUOMENYS
- Bendra informacija:
- Prietaiso spalva Juoda
- Plotis 60 cm
- Šildymo elementų matmenys 1 x (38,0 x 21,0 cm), 1 x 14,5 cm Ø, 1 x 21,0 cm Ø
- Šildymo elementų galia 1 x 1,4 (2,2) kW, 3 x 2,2 (3,7) kW
- Rėmo tipas Be rėmelio
- Švytinčių plokščių skaičius 0
- Indukcinių plokštelių numeris 4
- šildymas su stiprintuvu Visi
- Valdymo nustatymo įtaisų tipas priekyje
- Maks. oro ištraukimas 500 m³/val
- Padidinkite oro ištraukimo padėtį 622 m³/val
- Maks. oro recirkuliacija 441 m³/val
- Padidinimo padėties išėjimo recirkuliacija 595,0 m³/val
- Garso galia esant maks. greitis (2010/30/EB) 69 dB
- Garso galios padidinimas (2010/30/EB) 74 dB
- Triukšmo lygis 69 dB(A) 1 pW
- Kaitlentės energijos sąnaudos 178,3 Wh/kg
- Pridedami priedai 1 x slankiklis be kanalo recirkuliacijai, 1 x Clean Air Plus kvapų filtras
Dydis ir svoris:
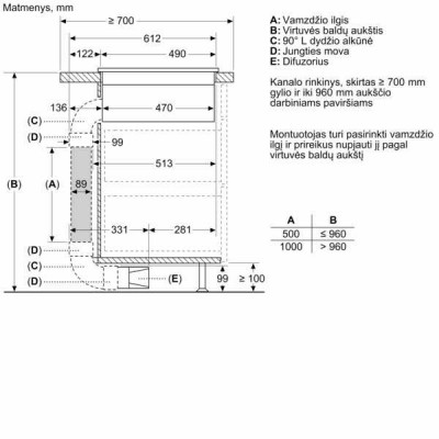
- Matmenys 223 x 592 x 522 mm
- Minimalus montavimo aukštis 490 mm
- Maksimalus montavimo aukštis 490 mm
- Mažiausias montavimo plotis 560 mm
- Maksimalus montavimo plotis 560 mm
- Montavimo gylis 223 mm
- Prietaiso aukštis virš stalviršio 6,0 mm
Energija:
- Ryšio įvertinimas 7 400 W
- Įtampa 220-240/380-415 V
- Ilgis elektros maitinimo laidas 110,0 cm
- Kištuko tipas nėra kištuko (elektro pajungimas atliekamas elektriko)
- Pridedami vartotojo vadovai [DA, DE, FI, FR, IT, NL, NO, SV]
- Valdymo tipas TouchControl
- kaitvietės valdymo nustatymai Kintami 17 pakopų galios nustatymai kiekvienai zonai
- Kepimo zonos lankstumas Kombinuota zona
- PowerBoost Taip
- Greita pradžia Taip
- Elektroninis laikmatis Taip
Ryšys:
- Energijos suvartojimas budėjimo režimu / ekranas išjungtas 0,2 W
- Laikas automatinis budėjimo režimas/displ. išjungti 20,0 min
Saugumas:
- Likutinės šilumos indikatorius Atskirai
- Saugos įtaisas nuo vaikų apsaugotas užraktas, keptuvės atpažinimas, maitinimo valdymo funkcija, saugos laiko išjungimas
Daugiau informacijos gamintojo puslapyje
Apie gamintoją:
BOSCH yra pasaulyje pirmaujanti buitinės technikos gamintoja. Įmonės strateginis tikslas yra kurti sprendimus skaitmenizuotam gyvenimui, ir gerinti gyvenimo kokybę visame pasaulyje savo gaminiais ir paslaugomis, kurios yra inovatyvios ir kelia entuziazmą. Kompanijos ateities augimo pagrindas yra jos stiprybė kuriant inovacijas.